情報更新日:2025年10月14日/広告有効期限:2025年12月15日
表示閲覧回数(過去30日間):38
お急ぎの方はお電話からお気軽にどうぞ!
0120-61-0834 営業時間 / 10:00〜17:00 定休日 / 水曜日
>物件詳細情報
| 基本情報 | |
|---|---|
| 物件番号 | 03672300201 | 
| 店舗形態 | 店舗, 事務所 | 
| オススメ業種 | 医療関係, 塾・学校・教育関係, 美容関係, 事務所 | 
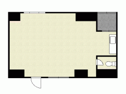
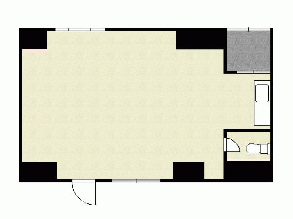
| 物件名 | 小倉ホースビル201 | 
| 物件の状態 | 空き | 
| 引越し時期 | 即 | 
| 契約形態と期間 | 普通契約期間:3年間 | 
| 所在地・交通 | |
|---|---|
| 所在地 | 福岡県北九州市小倉北区馬借3-2-19 | 
| 交 通1 | 西鉄バス市立医療センター前 徒歩1分 | 
| 交 通2 | - | 
| 賃料 | |
|---|---|
| 賃 料 | 65,000円(税込) | 
| 敷 金 | 1ヶ月 | 
| 精算方法 | 敷引  退去時 1ヶ月 実費 | 
| 礼 金 | 1ヶ月 | 
| その他 | |
|---|---|
| 備考 | |
| 建物 | |
|---|---|
| 建物構造 | 鉄筋コンクリート造 | 
| 建物階建て | 地上5階 | 
| 施工年月 | 1987(昭和62)年 09月 | 
| 募集物件の階数 | 地上 2階 201号室 | 
| 契約面積 | 35.96m2(10.88坪) | 
| 用途地域 | 商業地域 | 
| 設備 | |
|---|---|
| トイレ | 有/専用 | 
| 駐車場 | |
|---|---|
| 状 況 | 無し | 
| 取引情報 | |
|---|---|
| 取引態様 | 媒介 | 
| 客付 | 可 | 
この物件をチェックした人はこんな物件も見ています
- 住居としても店舗・事務所としても可!旦過駅近です。
 
 福岡県北九州市小倉北区馬借1-5-13
  42.90m2(12.98坪) 42.90m2(12.98坪)
  60,000円(税込) 60,000円(税込)
- モノレール守恒徒歩2分! グッデイ前
 
 福岡県北九州市小倉南区守恒本町1-3-32
  32m2(9.68坪) 32m2(9.68坪)
  110,000円(税込) 110,000円(税込)
- コレット井筒屋前!バス・モノレール線沿い
 
 福岡県北九州市小倉北区京町2-7-13
  37m2(11.19坪) 37m2(11.19坪)
  198,000円(税込) 198,000円(税込)
- JR黒崎駅まで徒歩圏内です!
 
 福岡県北九州市八幡西区熊手三丁目-2-7
  254m2(76.84坪) 254m2(76.84坪)
  275,000円(税込) 275,000円(税込)
- 清潔感と快適さを備えた上質なオフィス。残り現状1室のみとなりました。37.2坪は16.9坪と20.3坪の2部屋に分かれていますので、執務室と会議室など分けて使う事ができます!
 
 福岡県北九州市小倉南区富士見2-4-13
  123m2(37.21坪) 123m2(37.21坪)
  181,500円(税込) 181,500円(税込)
今日チェックした物件
お急ぎの方はお電話からお気軽にどうぞ!
0120-61-0834 営業時間 / 10:00〜17:00 定休日 / 水曜日


 0120-61-0834
0120-61-0834












 
        
        
        
 
      

 
          




 0120-61-0834
0120-61-0834