情報更新日:2026年01月04日/広告有効期限:2026年06月15日
表示閲覧回数(過去30日間):32
お急ぎの方はお電話からお気軽にどうぞ!
0120-61-0834 営業時間 / 10:00〜17:00 定休日 / 水曜日
>物件詳細情報
| 基本情報 | |
|---|---|
| 物件番号 | 34046300101 |
| 店舗形態 | 店舗, 路面店舗, 居抜店舗 |
| オススメ業種 | |
| 物件名 | 霧ケ丘バタリー |
| 物件の状態 | 空き |
| 引越し時期 | 即 |
| 契約形態と期間 |
普通契約期間:2年間 |
| 所在地・交通 | |
|---|---|
| 所在地 | 福岡県北九州市小倉北区黒原2-33-23 |
| 交 通1 | 日豊本線安部山公園駅 徒歩27分 |
| 交 通2 | - |
| 賃料 | |
|---|---|
| 賃 料 | 407,000円(税込) |
| 敷 金 |
4ヶ月 |
| 精算方法 |
敷引 退去時 4ヶ月 |
| その他 | |
|---|---|
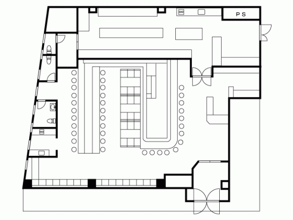
| 備考 | 開店寿司の設備有り。 |
| 建物 | |
|---|---|
| 建物構造 | 鉄骨造 |
| 建物階建て |
地上2階 |
| 施工年月 | 1999(平成11)年 09月 |
| 募集物件の階数 | 地上 1階 101号室 |
| 契約面積 | 172m2(52.03坪) |
| 用途地域 | 2種住居 |
| 設備 | |
|---|---|
| トイレ | 有/専用 |
| キッチン | 有/専用 |
| 駐車場 | |
|---|---|
| 状 況 | 空有 |
| 駐車料金 | 11,000円(税込) |
| 空き台数 | 11台 |
| 取引情報 | |
|---|---|
| 取引態様 | 媒介 |
| 客付 | 不可 |
この物件をチェックした人はこんな物件も見ています
- 徳力公団すぐ!飲食可。モノレール沿いです。敷金0!パノラマ写真はこちら→https://spacely.co.jp/plaza_demand/049040101

福岡県北九州市小倉南区徳力2-3-8
66.14m2(20.01坪)
165,000円(税込)
- モノレール守恒徒歩2分! グッデイ前

福岡県北九州市小倉南区守恒本町1-3-32
32m2(9.68坪)
110,000円(税込)
- ◇賃料3カ月間半額キャンペーン(2026年3月31日迄申込分迄)!! ◇駐車場は7台別途月極契約可能です(2026年1月31日現在)! 国道3号線ロードサイド!事務所仕上げです!

福岡県北九州市小倉北区吉野町-10-19
85.95m2(26.00坪)
149,600円(税込)
- JR城野駅1階!新築未入居!スケルトン

福岡県北九州市小倉南区城野1-6-1
86.62m2(26.20坪)
253,000円(税込)
- JR黒崎駅、真正面の好立地事務所!

福岡県北九州市八幡西区黒崎一丁目
79.34m2(24.00坪)
264,000円(税込)
今日チェックした物件
お急ぎの方はお電話からお気軽にどうぞ!
0120-61-0834 営業時間 / 10:00〜17:00 定休日 / 水曜日


0120-61-0834
















0120-61-0834