情報更新日:2025年11月03日/広告有効期限:2026年01月31日
表示閲覧回数(過去30日間):41
お急ぎの方はお電話からお気軽にどうぞ!
0120-61-0834 営業時間 / 10:00〜17:00 定休日 / 水曜日
>物件詳細情報
| 基本情報 | |
|---|---|
| 物件番号 | 34662300101 |
| 店舗形態 | 店舗 |
| オススメ業種 | 軽飲食, 物販関係, 美容関係, 塾・学校・教育関係 |
| 物件名 | ハーベスト守恒駅前 101 |
| 物件の状態 | 空き |
| 引越し時期 | 相談 |
| 契約形態と期間 |
普通契約期間:3年間 |
| 所在地・交通 | |
|---|---|
| 所在地 | 福岡県北九州市小倉南区守恒本町2-5-18 |
| 交 通1 | モノレール守恒駅 徒歩1分 |
| 交 通2 | - |
| 賃料 | |
|---|---|
| 賃 料 | 187,000円(税込) |
| 敷 金 |
3ヶ月 |
| 共益費・管理費 | 11,000円(税込) |
| 精算方法 | 実費 |
| その他 | |
|---|---|
| 備考 | スケルトンです。 |
| 建物 | |
|---|---|
| 建物構造 | 鉄骨造 |
| 建物階建て |
地上4階 |
| 施工年月 | 2016(平成28)年 03月 |
| 募集物件の階数 | 地上 1階 101号室 |
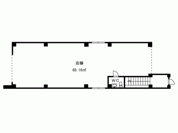
| 契約面積 | 68.46m2(20.71坪) |
| 用途地域 | 近商地域 |
| 設備 | |
|---|---|
| 水道 | 公営 |
| 下水道 | 公共下水 |
| シャッター | 有/手動 |
| 駐車場 | |
|---|---|
| 状 況 | 空有無料 |
| 空き台数 | 1台 |
| 取引情報 | |
|---|---|
| 取引態様 | 媒介 |
| 客付 | 不可 |
この物件をチェックした人はこんな物件も見ています
- モノレール守恒徒歩2分! グッデイ前

福岡県北九州市小倉南区守恒本町1-3-32
32m2(9.68坪)
110,000円(税込)
- モノレール守恒駅まで徒歩5分!前面 駐車場3台無料!事務所仕上げ引き渡し相談可です。パノラマ写真はこちら→https://spacely.co.jp/plaza_demand/0307302

福岡県北九州市小倉南区守恒本町一丁目-15-31
68.03m2(20.58坪)
132,000円(税込)
- 飲食店跡居ぬきです

福岡県北九州市八幡東区春の町1-4-10
72.92m2(22.06坪)
110,000円(税込)
- 徳力公団すぐ!飲食可。モノレール沿いです。敷金0!パノラマ写真はこちら→https://spacely.co.jp/plaza_demand/049040101

福岡県北九州市小倉南区徳力2-3-8
66.14m2(20.01坪)
165,000円(税込)
- スケルトンなので好みに内装仕上げれます!

福岡県北九州市小倉北区金田2-12-6
39.63m2(11.99坪)
110,000円(税込)
今日チェックした物件
お急ぎの方はお電話からお気軽にどうぞ!
0120-61-0834 営業時間 / 10:00〜17:00 定休日 / 水曜日


0120-61-0834


















0120-61-0834