情報更新日:2026年04月11日/広告有効期限:2026年08月11日
表示閲覧回数(過去30日間):39
お急ぎの方はお電話からお気軽にどうぞ!
0120-61-0834 営業時間 / 10:00〜17:00 定休日 / 水曜日
>物件詳細情報
| 基本情報 | |
|---|---|
| 物件番号 | 22820300301 |
| 店舗形態 | 店舗 |
| オススメ業種 | |
| 物件名 | 第二木山ビル301 |
| 物件の状態 | 空き |
| 引越し時期 | 相談 |
| 契約形態と期間 |
普通契約期間:3年間 |
| 所在地・交通 | |
|---|---|
| 所在地 | 福岡県北九州市小倉北区片野2-9-40 |
| 交 通1 | 西鉄バス片野2丁目 徒歩1分 |
| 交 通2 | - |
| 賃料 | |
|---|---|
| 賃 料 | 123,200円(税込) |
| 敷 金 |
1ヶ月 |
| 精算方法 | 実費 |
| 礼 金 | 1ヶ月 |
| その他 | |
|---|---|
| 備考 | |
| 建物 | |
|---|---|
| 建物構造 | 鉄筋コンクリート造 |
| 建物階建て |
地上7階 |
| 施工年月 | 1977(昭和52)年 01月 |
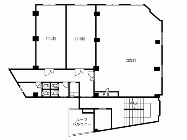
| 募集物件の階数 | 地上 3階 301号室 |
| 契約面積 | 105.78m2(32.00坪) |
| 用途地域 | 商業地域 |
| 設備 | |
|---|---|
| 水道 | 公営 |
| 下水道 | 公共下水 |
| エレベータ | 有 |
| トイレ | 有/共用 |
| 給湯室 | 有/共用 |
| キッチン | 有/共用 |
| 駐車場 | |
|---|---|
| 状 況 | 空有 |
| 駐車料金 | 10,800円(税込) |
| 空き台数 | 5台 |
| 取引情報 | |
|---|---|
| 取引態様 | 媒介 |
| 客付 | 不可 |
この物件をチェックした人はこんな物件も見ています
- 3号線沿い!

福岡県北九州市小倉北区吉野町-13-1
151.91m2(45.95坪)
252,725円(税込)
- モノレール守恒徒歩2分! グッデイ前

福岡県北九州市小倉南区守恒本町1-3-32
32m2(9.68坪)
110,000円(税込)
- 駐車場3台付。小波瀬西工大前から徒歩3分です

福岡県京都郡苅田町新津1-11-31
140.50m2(42.50坪)
132,000円(税込)
- JR小波瀬西工大前駅まで徒歩5分!

福岡県京都郡苅田町新津2-10-15
20m2(6.05坪)
13,000円(税込)
- 徳力公団すぐ!飲食可。モノレール沿いです。敷金0!パノラマ写真はこちら→https://spacely.co.jp/plaza_demand/049040101

福岡県北九州市小倉南区徳力2-3-8
66.14m2(20.01坪)
165,000円(税込)
今日チェックした物件
お急ぎの方はお電話からお気軽にどうぞ!
0120-61-0834 営業時間 / 10:00〜17:00 定休日 / 水曜日


0120-61-0834



















0120-61-0834