情報更新日:2026年01月04日/広告有効期限:2026年05月15日
表示閲覧回数(過去30日間):61
お急ぎの方はお電話からお気軽にどうぞ!
0120-61-0834 営業時間 / 10:00〜17:00 定休日 / 水曜日
>物件詳細情報
| 基本情報 | |
|---|---|
| 物件番号 | 38908300101 |
| 店舗形態 | 店舗, 事務所 |
| オススメ業種 | 重飲食, 塾・学校・教育関係, 軽飲食 |
| 物件名 | 門司原町別院店舗 |
| 物件の状態 | 空き |
| 引越し時期 | 即 |
| 契約形態と期間 |
普通契約期間:3年間 |
| 所在地・交通 | |
|---|---|
| 所在地 | 福岡県北九州市門司区原町別院-4-29 |
| 交 通1 | 鹿児島本線門司駅 徒歩10分 |
| 交 通2 | - |
| 賃料 | |
|---|---|
| 賃 料 | 99,000円(税込) |
| 礼 金 | 1ヶ月 |
| その他 | |
|---|---|
| 備考 | |
| 建物 | |
|---|---|
| 建物構造 | 鉄筋コンクリート造 |
| 建物階建て |
地上3階 |
| 施工年月 | 1983(昭和58)年 03月 |
| 募集物件の階数 | 地上 1階 1号室 |
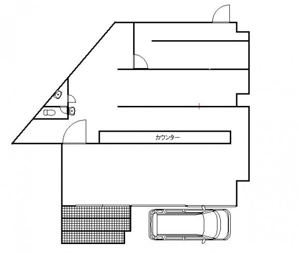
| 契約面積 | 74.81m2(22.63坪) |
| 設備 | |
|---|---|
| 水道 | 公営 |
| 下水道 | 公共下水 |
| ガス | LPG |
| エレベータ | 無 |
| エアコン | 無 |
| トイレ | 有/専用 |
| 給湯室 | 有/専用 |
| キッチン | 有/専用 |
| セキュリティ | 無 |
| 利用時間 | 24時間 |
| シャッター | 無 |
| 照明設備 | 有 |
| 駐車場 | |
|---|---|
| 状 況 | 空有無料 |
| 空き台数 | 1台 |
| 取引情報 | |
|---|---|
| 取引態様 | 媒介 |
| 客付 | 不可 |
この物件をチェックした人はこんな物件も見ています
- 徳力公団すぐ!飲食可。モノレール沿いです。敷金0!パノラマ写真はこちら→https://spacely.co.jp/plaza_demand/049040101

福岡県北九州市小倉南区徳力2-3-8
66.14m2(20.01坪)
165,000円(税込)
- 小倉駅徒歩8分事務所です

福岡県北九州市小倉北区堺町1-6-15
171.70m2(51.94坪)
628,474円(税込)
- 片野1階事務所です。入口前に駐車(軽)スペースあり。パノラマ写真はこちら→https://spacely.co.jp/plaza_demand/F85VjYWYoS

福岡県北九州市小倉北区片野4-14-1
32.60m2(9.86坪)
45,000円(税込)
- 北九州のランドマークであるリーガロイヤルホテル小倉、パレロイヤル1階です、業種ご相談ください! 山陽新幹線小倉駅徒歩3分! 原則保証会社は必須加入となります。

福岡県北九州市小倉北区浅野2-14-2
18.47m2(5.59坪)
49,280円(税込)
- 新築★戸畑区役所近く。前面駐車場2台付。内装仕上げ相談可。

福岡県北九州市戸畑区千防1-8-6
66.03m2(19.97坪)
219,670円(税込)
今日チェックした物件
お急ぎの方はお電話からお気軽にどうぞ!
0120-61-0834 営業時間 / 10:00〜17:00 定休日 / 水曜日


0120-61-0834



















0120-61-0834